
-
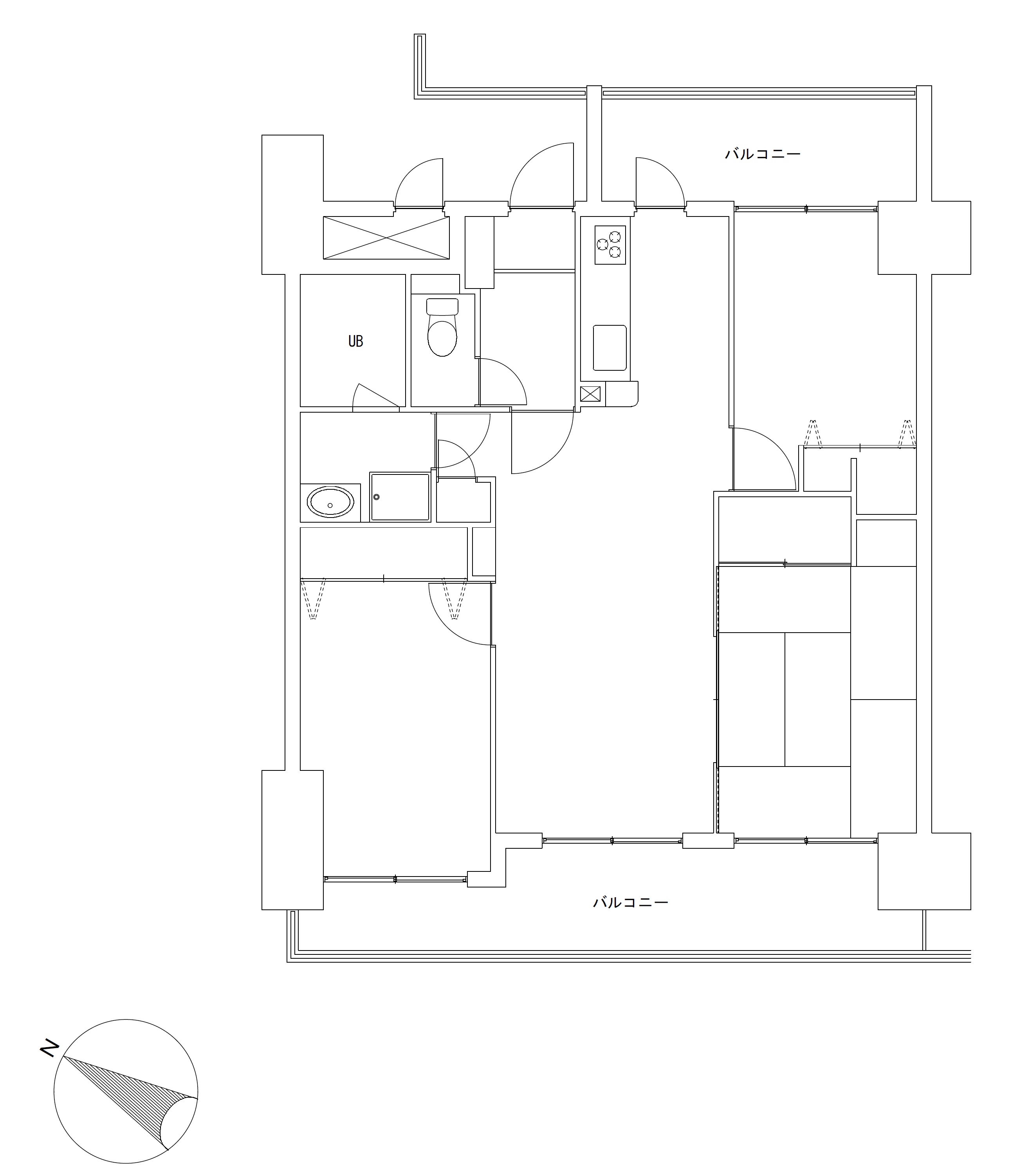
可動間仕切の開閉により間取変更が簡単に行え、家族構成やライフスタイルの変化にも柔軟に対応。収納を増やしたり、冷蔵庫スペースの新設など、使い勝手を考慮した間取へリノベーション。
-
DATA
- 物件種別
- :
- マンション
- 所在地
- :
- 福岡県福津市
- 施工面積
- :
- 66.89㎡
- 間取り
- :
- 3LDK
- 築年数
- :
- 平成6年
- 工事費
- :
- 約660万円
- 工事期間
- :
- 2ヶ月
- 工事箇所
- :
- フルリノベ

可動間仕切の開閉により間取変更が簡単に行え、家族構成やライフスタイルの変化にも柔軟に対応。収納を増やしたり、冷蔵庫スペースの新設など、使い勝手を考慮した間取へリノベーション。
DATA
リノベーションプラン
リノベーション前
リノベーション後


リノベーション写真
ビフォー・アフター
リノベーション前
リノベーション後

