
-
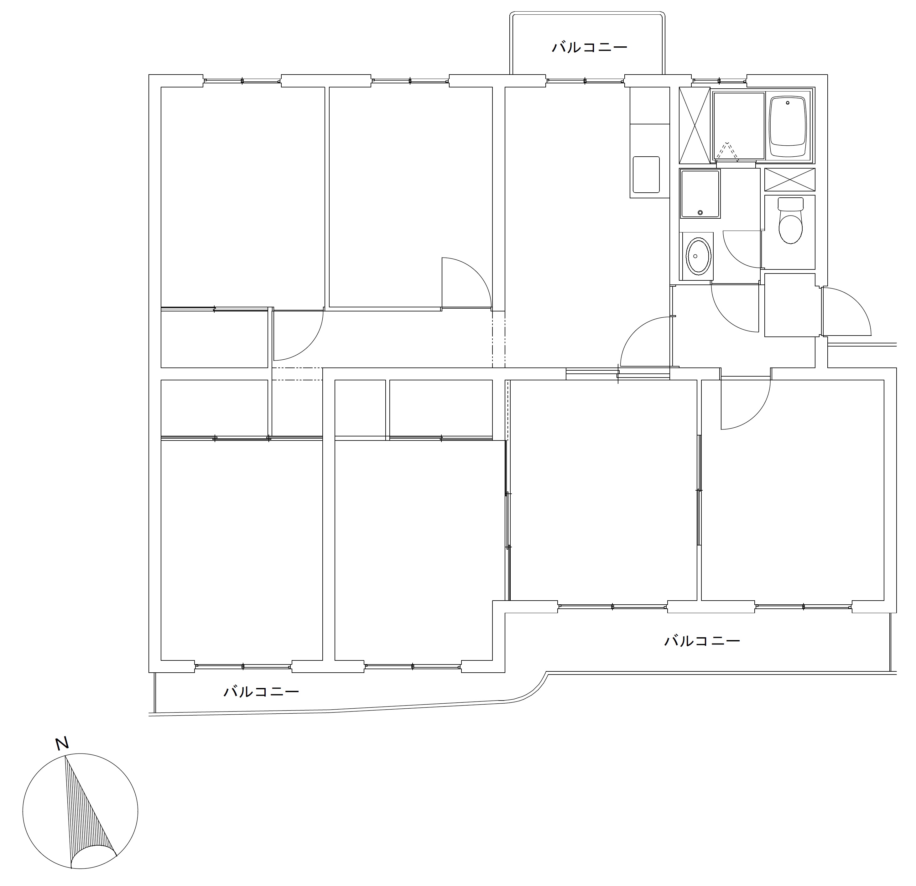
お部屋の広さや採光・通風等、住環境の良さが魅力の団地リノベーション。4LDKの間取ながら、20帖を超える開放的なLDK。収納スペースも随所に設け、今時のライフスタイルに合わせた間取りへ。
-
DATA
- 物件種別
- :
- マンション
- 所在地
- :
- 福岡県糟屋郡粕屋町
- 施工面積
- :
- 97.73㎡
- 間取り
- :
- 4LDK
- 築年数
- :
- 昭和52年
- 工事費
- :
- 約800万円
- 工事期間
- :
- 2ヶ月
- 工事箇所
- :
- フルリノベ

お部屋の広さや採光・通風等、住環境の良さが魅力の団地リノベーション。4LDKの間取ながら、20帖を超える開放的なLDK。収納スペースも随所に設け、今時のライフスタイルに合わせた間取りへ。
DATA
リノベーションプラン
リノベーション前
リノベーション後


リノベーション写真
ビフォー・アフター
リノベーション前
リノベーション後

