
-
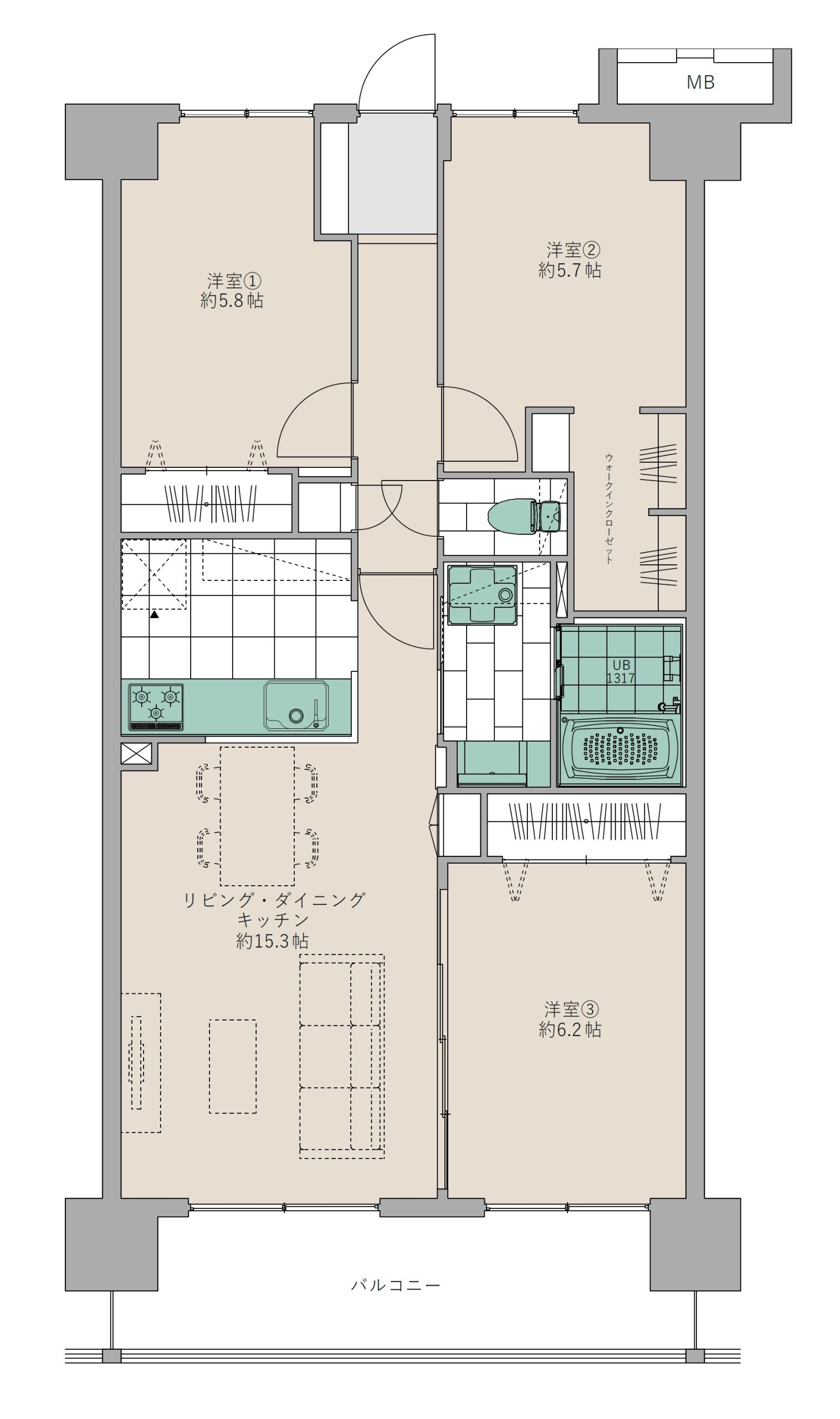
和室から洋室への変更やウォークインクローセットの新設以外には大規模な間取変更はおこなわず、3部屋とLDKを確保しつつより快適に生活するには?を考えてつくられたリノベーション事例です。
-
DATA
- 物件種別
- :
- マンション
- 所在地
- :
- 福岡県福津市
- 施工面積
- :
- 74.34㎡
- 間取り
- :
- 3LDK
- 築年数
- :
- 平成8年
- 工事費
- :
- 約900万円
- 工事期間
- :
- 2ヶ月
- 工事箇所
- :
- フルリノベ

和室から洋室への変更やウォークインクローセットの新設以外には大規模な間取変更はおこなわず、3部屋とLDKを確保しつつより快適に生活するには?を考えてつくられたリノベーション事例です。
DATA
リノベーションプラン
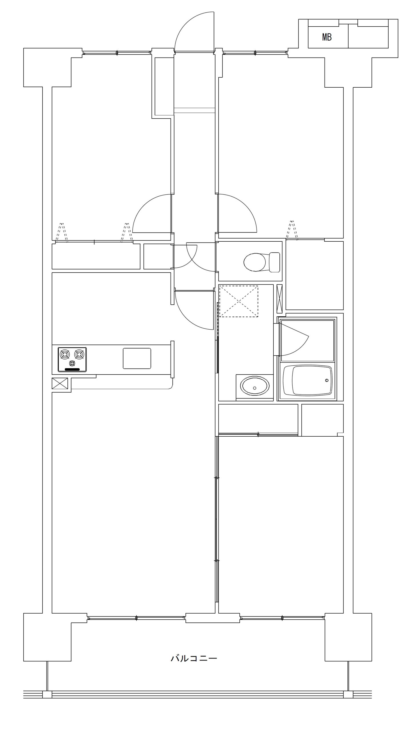
リノベーション前
リノベーション後


リノベーション写真
ビフォー・アフター
リノベーション前
リノベーション後

